Sady Żoliborskie | 2 pok i widna kuchnia | balkon

Mieszkanie na sprzedaż
675 000,00 PLN , Pow. 38 m2
Typ nieruchomości:
Mieszkanie
Powierzchnia:
38 m2
Typ transakcji:
sprzedaż
Liczba pokoi:
2
Lokalizacja:
Warszawa Żoliborz Sady Żoliborskie , Przasnyska
Rok budowy:
1965
Piętro:
2 na 6
Numer oferty:
34964503038
Cena za m2:
17 763,16 PLN
2-pokojowe mieszkanie z oddzielną, widną kuchnią i balkonem w świetnej lokalizacji na Sadach Żoliborskich.

MIESZKANIE

Jest to idealna oferta dla osób szukających mieszkania na start lub ciekawej oferty inwestycyjnej.
Nieruchomość nie wymaga dodatkowych nakładów - jest gotowa do zamieszkania i przeszła kapitalny remont 2 lata temu - odnowiono również instalacje elektryczną i wod.-kan.


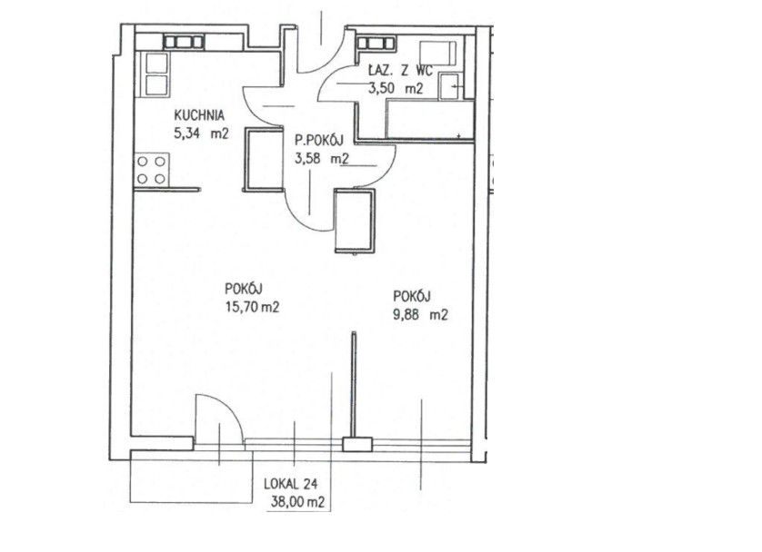
Mieszkanie o powierzchni 38 mkw. charakteryzuje bardzo praktyczny rozkład pomieszczeń -  lokal składa się z:
- dużego pokoju (15,70 m2) - wyposażonego w narożnik, stół i szafę. Z pokoju jest wyjście na balkon,
- mniejszego pokoju (9,88 m2) - w którym znajduje się rozkładana sofa i biurko,
- oddzielnej, widnej kuchni (5,34 m2) - wyposażonej we wszystkie potrzebne sprzęty AGD włącznie ze zmywarką,
- łazienki z wanną - 3,50 m2,
- hallu - 3,58 m2.

Okna lokalu mają ekspozycję południowo-wschodnią, co gwarantuje dobre doświetlenie pomieszczeń.
Odległość od sąsiedniego budynku to ponad 50 metrów, więc nie ma tutaj efektu "okno w okno", który notorycznie spotyka się na nowych osiedlach mieszkaniowych.
Budynek, w którym znajduje się lokal, znajduje się w trzeciej linii zabudowy od ulicy co gwarantuje ciszę i spokój.
Mieszkanie jest w pełni wyposażone - posiada nowe sprzęty AGD, włącznie z piekarnikiem i zmywarką oraz pralką.

BUDYNEK I LOKALIZACJA
Mieszkanie znajduje się na drugim piętrze w sześciopiętrowym bloku wzniesionym w 1965 roku przy ulicy Przasnyskiej na Sadach Żoliborskich. Części wspólne budynku włącznie z windą zostały wyremontowane kilka lat temu.
Sama lokalizacja to wymarzone miejsce dla osób szukających spokojnego miejsca, z pełnym dostępem do infrastruktury i z doskonałym połączeniem z centrum Warszawy i innymi częściami miasta.
Okolica obfita jest w sklepy, butiki, restauracje i kawiarnie.
Bliskość terenów zielonych zadowoli najzagorzalszych rowerzystów i biegaczy.
Mała odległość do centrum i doskonałe połączenie komunikacyjne (autobus, metro, tramwaj) pozwalają w 20-25 minut dostać się do centralnej części miasta.

MIEJSCE PARKINGOWE
Istnieje możliwość stawiania samochodu za szlabanem na terenie spółdzielni.

PIWNICA
Do lokalu przynależy piwnica.

FINANSE
Cena za lokal: 675 000 PLN


--- ENGLISH DECRIPTION ---

2-room apartment with a separate, bright kitchen and a balcony in a great location in Sady Żoliborskie.

APARTMENT
This is a perfect offer for those looking for a starter home or an interesting investment opportunity.
The property requires no additional expenses - it is move-in ready and underwent a full renovation two years ago, including updates to the electrical and plumbing systems.
The apartment has a total area of 38 sqm and features a very functional layout:
- Spacious living room (15.70 sqm) - furnished with a corner sofa, table, and wardrobe, with access to the balcony.
- Smaller bedroom (9.88 sqm) - equipped with a fold-out sofa and a desk.
- Separate, bright kitchen (5.34 sqm) - fully equipped with all necessary household appliances, including a dishwasher.
- Bathroom with a bathtub - 3.50 sqm
- Hallway - 3.58 sqm

The apartment’s windows have a southeast exposure, ensuring plenty of natural light.
The distance to the neighboring building is over 50 meters, so there is no "window-to-window" effect, which is common in new residential developments.
The building is set back from the main street, located in the third row of buildings, ensuring peace and quiet.
The apartment is fully furnished and equipped with new household appliances, including an oven, dishwasher, and washing machine.

BUILDING & LOCATION
The apartment is situated on the second floor of a six-story building constructed in 1965 on Przasnyska Street in Sady Żoliborskie.
The common areas of the building, including the elevator, were renovated a few years ago.
This location is ideal for those seeking a peaceful environment with full access to amenities and excellent connections to downtown Warsaw and other parts of the city.
The area is rich in shops, boutiques, restaurants, and cafés.
Green spaces nearby will satisfy even the most dedicated cyclists and runners.
With a short distance to the city center and excellent public transport connections (bus, metro, tram), you can reach the heart of Warsaw in just 20-25 minutes.

PARKING SPACE
There is a possibility to park a car behind a barrier gate on the cooperative's premises.

STORAGE UNIT
The apartment comes with a basement storage unit.

FINANCES
Price: 675 000 PLN
Nieprawidłowy adres E-mail