Słoneczny bliźniak Wawer ul. Dzięcioła

Dom na sprzedaż
1 599 000,00 PLN , Pow. 157,99 m2
Drukuj ofertę
Drukuj ofertę
Typ nieruchomości:
Dom
Powierzchnia:
157,99 m2
Typ transakcji:
sprzedaż
Liczba pokoi:
5
Lokalizacja:
Warszawa
Rok budowy:
2009
Liczba pięter:
1
Numer oferty:
34964542681
Powierzchnia działki:
327 m2
Cena za m2:
10 120,89 PLN
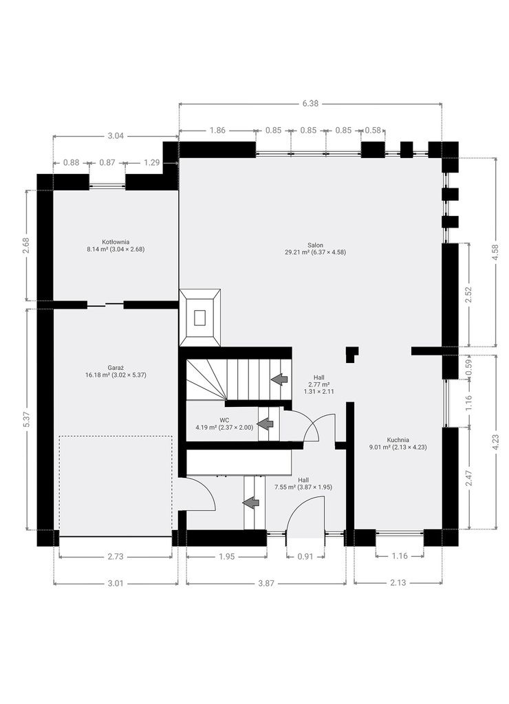
Dom bliźniak 158 m² 4 sypialnie ogród Wawer, ul. Dzięcioła

Na sprzedaż funkcjonalny dom w zabudowie bliźniaczej o powierzchni ok. 158 m², położony na działce 327 m² w spokojnej części Wawra.

Nieruchomość oferuje wygodny układ dla rodziny: przestronny salon z kominkiem i wyjściem na słoneczny ogród (ekspozycja południowa), częściowo otwartą kuchnię oraz aż 4 sypialnie na piętrze. Dodatkowym atutem jest garderoba, duża łazienka oraz garaż w bryle budynku.

Rozkład pomieszczeń:
Parter:
• salon z kominkiem i wyjściem na ogród
• częściowo otwarta kuchnia
• hol
• WC
• wiatrołap
• garaż
• kotłownia
Piętro:
• 4 sypialnie (w tym jedna z garderobą)
• łazienka z wanną i prysznicem
Poddasze:
• przestrzeń do przechowywania

Dom z 2009 roku, ogrzewany gazem, z własnym ujęciem wody i planowanym podłączeniem do kanalizacji. Na posesji znajdują się dodatkowe miejsca parkingowe, a teren jest ogrodzony, objęty monitoringiem i alarmem.

Zadbany ogród z tarasem (markiza elektryczna) oraz spokojna, zielona okolica zapewniają komfort codziennego życia. W pobliżu sklepy, szkoły, komunikacja miejska oraz szybki dojazd do centrum Warszawy.

Zapraszam na prezentację.


Nieprawidłowy adres E-mail